Samostojna hiša C

IZOLACIJA
DEMIT: 18CM

KRITINA
CREATON

OPEKA
WIENERBERGER – MODUL BLOK
NASELJE SONČNA OAZA
CENTER POLZELA
V mestu Polzela smo začeli z izgradnjo popolnoma novega elitnega naselja. Naselje se imenuje Sončna Oaza – Center Polzela.
V novo nastalem naselju imamo 24 parcel, od tega 21 parcel za samostojne hiše in 3 parcele za dvojčke. Parcele so velike med 440 m² pa vse do 700 m²
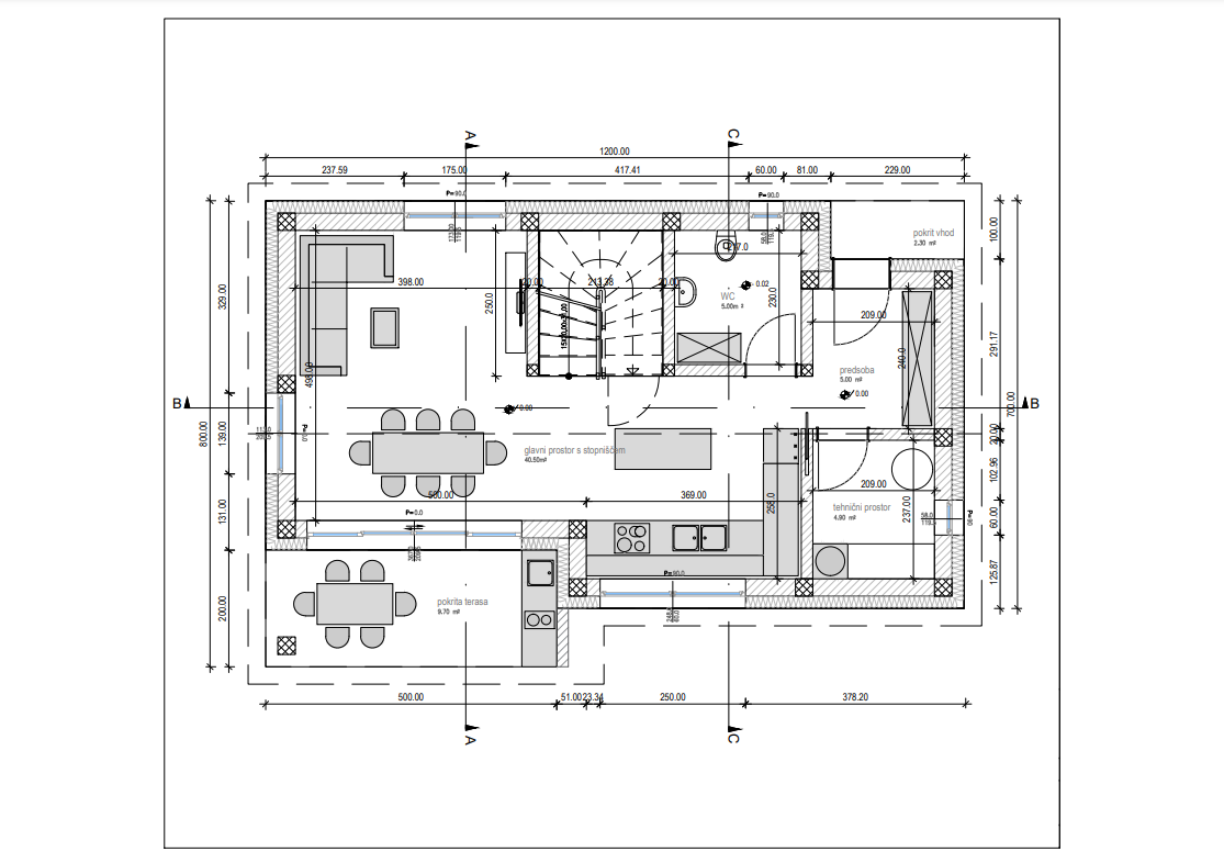
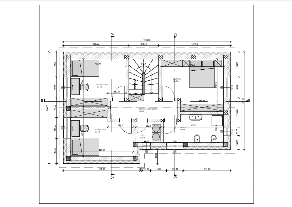
Objekt hiša tlorisnih dimenzij 12×7, moderno zasnovana, etažnost P+M, s streho dvokapnico v naklonu 40 stopinj. Neto tlorisna površina hiše s teraso bo znašala 120,40 m² oz 132,40 m² skupaj z zunanjo pokrito površino, ki bo zgrajena na posameznem zemljišču velikosti med 440 m² pa vse do 700 m².
S pravočasno odločitvijo o nakupu, si lahko izbirate parcelo na kateri bo stal vaš novi dom. Nudimo vam tudi možnost izgradnje na ključ ali izgradnjo do želene gradbene faze.
Objekt bo grajen do 3 p.g.f. iz modularne opeke, debelina fasade bo 18 cm, opeke Creaton rapido, vgrajena bodo kvalitetna troslojna in osem komorna PVC okna in vrata. Objekt bo grajen skladno s smernicami za nizkoenergijsko gradnjo, ogrevanje predvideno na toplotno črpalko.
Arhitektura objekta sledi modernim smernicam oblikovanja, streha z napuščem (cca 30 cm), velike steklene površine, bela fasada v kombinaciji z sivo streho, leseni dodatki na fasadi, ki dajejo objektu občutek topline.
Razporeditev prostorov je moderna, funkcionalna in okolju prilagojena. Glavni bivalni prostori v pritličju bodo izvedeni kot en velik prostor, ki se preko velikih steklenih površin odpira proti naravi.
V etaži je poleg osnovnih prostorov še dodaten prostor namenjen kot Utility.
Objekti so umeščeni v prostor zelo smiselno, glavne bivalne površine se odpirajo v smer jug in zahod, velikost posameznih parcel je optimalna. Na južni strani objekta vas čaka prostorna zelenica, ki vam bo ponudila veliko možnosti za užitke na soncu skozi vse leto. Prostora je dovolj tudi za postavitev bazena, vrta in piknik prostora.
Vsi infrastrukturni priključni (vodovod, kanalizacija, elektrika, telekomunikacijski vodi, itd..), bodo na parceli in izvedeni v sklopu izgradnje povezovalne dovozne ceste s komplet infrastrukturo in asfaltnim dovozom.
Naselje bo imelo na glavnem delu tudi pločnik in po celotnem naselju tudi javno razsvetljavo.
Sama okolica ponuja nadstandarden način življenja, saj so vse potrebne storitve v neposredni bližini. Na Polzeli se nahaja vrtec, šola, zdravstveni dom, lekarna, trgovine, gostinska ponudba, banka, pošta in grad Komenda, sprehajalne poti ob reki Savinji, urejene športne površine in še veliko ostalih dejavnikov, ki omogočajo lagodno življenje.
Lokacijsko so objekti od centra kraja Polzela oddaljeni do 1 km, do AC priključka Lj-Mb manj kot 4 km.
Samostojna hiša C

Neto tlorisna
površina
120,40 m²

Cena na
ključ z DDV
po dogovoru

Energetsko
varčna hiša
Nizko energijska
gradnja
IZOLACIJA
DEMIT: 18CM

KRITINA
CREATON

OPEKA
WIENERBERGER – MODUL BLOK

V mestu Polzela smo začeli z izgradnjo popolnoma novega elitnega naselja. Naselje se imenuje Sončna Oaza – Center Polzela.
V novo nastalem naselju imamo 24 parcel, od tega 21 parcel za samostojne hiše in 3 parcele za dvojčke. Parcele so velike med 440 m² pa vse do 700 m²
Objekt hiša tlorisnih dimenzij 12×7, moderno zasnovana, etažnost P+M, s streho dvokapnico v naklonu 40 stopinj. Neto tlorisna površina hiše s teraso bo znašala 120,40 m² oz 132,40 m² skupaj z zunanjo pokrito površino, ki bo zgrajena na posameznem zemljišču velikosti med 440 m² pa vse do 700 m².
S pravočasno odločitvijo o nakupu, si lahko izbirate parcelo na kateri bo stal vaš novi dom. Nudimo vam tudi možnost izgradnje na ključ ali izgradnjo do želene gradbene faze.
Objekt bo grajen do 3 p.g.f. iz modularne opeke, debelina fasade bo 18 cm, opeke Creaton rapido, vgrajena bodo kvalitetna troslojna in osem komorna PVC okna in vrata. Objekt bo grajen skladno s smernicami za nizkoenergijsko gradnjo, ogrevanje predvideno na toplotno črpalko.
Arhitektura objekta sledi modernim smernicam oblikovanja, streha z napuščem (cca 30 cm), velike steklene površine, bela fasada v kombinaciji z sivo streho, leseni dodatki na fasadi, ki dajejo objektu občutek topline.
Razporeditev prostorov je moderna, funkcionalna in okolju prilagojena. Glavni bivalni prostori v pritličju bodo izvedeni kot en velik prostor, ki se preko velikih steklenih površin odpira proti naravi.
V etaži je poleg osnovnih prostorov še dodaten prostor namenjen kot Utility.
Objekti so umeščeni v prostor zelo smiselno, glavne bivalne površine se odpirajo v smer jug in zahod, velikost posameznih parcel je optimalna. Na južni strani objekta vas čaka prostorna zelenica, ki vam bo ponudila veliko možnosti za užitke na soncu skozi vse leto. Prostora je dovolj tudi za postavitev bazena, vrta in piknik prostora.
Vsi infrastrukturni priključni (vodovod, kanalizacija, elektrika, telekomunikacijski vodi, itd..), bodo na parceli in izvedeni v sklopu izgradnje povezovalne dovozne ceste s komplet infrastrukturo in asfaltnim dovozom.
Naselje bo imelo na glavnem delu tudi pločnik in po celotnem naselju tudi javno razsvetljavo.
Sama okolica ponuja nadstandarden način življenja, saj so vse potrebne storitve v neposredni bližini. Na Polzeli se nahaja vrtec, šola, zdravstveni dom, lekarna, trgovine, gostinska ponudba, banka, pošta in grad Komenda, sprehajalne poti ob reki Savinji, urejene športne površine in še veliko ostalih dejavnikov, ki omogočajo lagodno življenje.
Lokacijsko so objekti od centra kraja Polzela oddaljeni do 1 km, do AC priključka Lj-Mb manj kot 4 km.
Imate dodatna vprašanja? Kontaktirajte nas!

























