Sončna oaza Arclin pri Celju
Prodamo 2 samostojni hiši in 2 enoti dvojčka
126 m2, zgrajena leta 2021, P+M, prodamo
V naselju Arclin se je pričela gradnja mini elitnega naselja, ki bo obsegalo 2 samostojni hiši in 2 noti dvojčka, v mirni soseski, v »slepi ulici«. Gradnja bo končana predvidoma konec leta 2021.
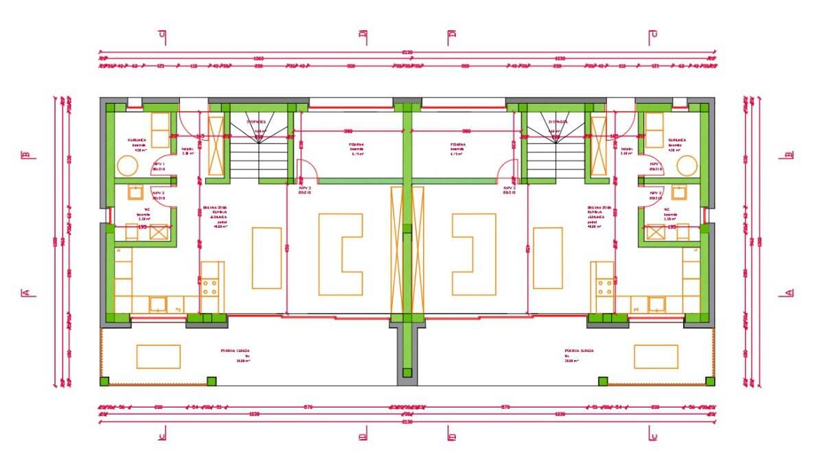
Objekt, hiša in dvojček, bo tlorisnih dimenzij 11x10m, moderno zasnovana, etažnosti P (pritličje) + M (mansarda) s streho dvokapnico v naklonu 40 stopinj. Neto tlorisna površina hiše bo znašala 126 m² + 20 m² pokrite terase.
S pravočasno odločitvijo o nakupu lahko še aktivno sodelujete pri prilagoditvi projektov med samo gradnjo. Nudimo vam tudi možnost izgradnje na ključ ali gradnjo do željene gradbene faze.
Objekt bo grajen iz modularne opeke, debelina fasade bo 18cm, opeke Creaton rapido, vgrajena bodo kvalitetna troslojna in sedem komorna PVC okna in vrata. Objekt bo grajen skladno s smernicami za nizkoenergijsko gradnjo, ogrevanje predvideno na toplotno črpalko.
Arhitektura objekta sledi modernim smernicam oblikovanja, strehe brez napuščev, velike steklene površine, bela fasada v kombinaciji s sivo streho, leseni dodatki na fasadi, ki dajejo objektu občutek topline.
Razporeditev prostorov je moderna, funkcionalna in okolju prilagojena. Glavni bivalni prostori v pritličju bodo izvedeni kot en velik enovit prostor, ki se preko velikih steklenih površin odpira proti naravi. V pritličju je poleg osnovnih bivalnih prostorov tudi dodaten prostor, soba – pisarna – kabinet. V etaži je poleg osnovnih prostorov še dodaten prostor namenjen kot Utility.
Objekti so umeščeni v prostor zelo smiselno, glavne bivalne površine se odpirajo v smer jug in zahod, velikost posameznih parcel je optimalna. Na južni strani objekta vas čaka prostorna zelenica, ki vam bo ponudila veliko možnosti za užitke na soncu skozi vse leto. Prostora je dovolj tudi za postavitev bazena, vrta in piknik prostora. Vsi infrastrukturni priključki (vodovod, kanalizacija, elektrika, telekomunikacijski vodi, itd.) bodo na parceli in izvedeni v sklopu izgradnje povezovalne dovozne ceste s komplet infrastrukturo in asfaltnim dovozom.
Sama okolica ponuja nadstandarden način življenja, saj so vse potrebne storitve v neposredni bližini. V bližini se nahaja vrtec, šola, zdravstveni dom, lekarna, trgovine, gostinska ponudba, banka, pošta, sprehajalne poti, urejene športne površine in še veliko ostalih dejavnikov, ki omogočajo lagodno življenje.
Lokacijsko so objekti od centra Celja oddaljeni 6 km, od centra Vojnika 1,5 km, do AC priključka LJ-MB manj kot 6 km.
Pri nakupu vam pomagamo pridobiti UGODEN KREDIT.
Vabljeni na BREZPLAČEN OGLED.
Veselimo se vašega obiska.






















